ONETECH Engineering 

ONETECH Engineering is

- Business in the field of technological solutions, equipment and tools supply for surface preparation and painting.

- Commercial activity, logically integrated into the businesses of companies engaged in the production, supply, sale of paint and varnish or related materials

- Business based on more than 20 years of experience, from supplying tools to designing own technological solutions and products

- Business based on combined experience with hundreds of clients in different countries

What does the business look like

Key business segments:

Metal products 

Metalwork, automotive industry,

automotive industry,

special equipment,

metal products

  

 

The wood industry

Enterprises of the woodworking and furniture industry

  

Other segments 

Aircraft construction and repair,
plumbing and ceramic industries,
glass industry  

 

Car repair

Passenger cars, buses, trucks

Key business directions:

Sales of standard tool, equipment 

 

Sales of individual projects, non-standard equipment 

Sales of service services, spare parts and consumables 

 

The main areas of activity

Segments:

Furniture industry

 

 

Military equipment 

Metal structures 

 

Aircraft construction 

Automobile industry

 

 

Wagonbuilding 

Special technique 

Farm equipment 

Worldwide trends in the paint spraying equipment market:

Eco Friendly

Increasing environmental requirements and the development of technology in the field of paint and varnish production 

Automation and robotization
 

of preparation and painting processes is a key trend in today's industry

 

Advantages of ONETECH Engineering:
 

- Design of own technological solutions and products

    (in-house design)

 

- Wide range of equipment included in the solutions (more than 40)


- References (more than 100 projects, 6 countries, 20 years)


- Experienced service technicians (Installation, commissioning, service) 

Examples of ONETECH Engineering projects:
 

Designing and equipping of the metalwork painting shop

 

 

205K

Examples of ONETECH Engineering projects:

Designing and equipping of the truck cabins paint shop

 

 

312K

Examples of ONETECH Engineering projects:

Designing and equipping of a paint shop for steel structures 

 

 

318K

ONETECH Engineering key competencies 

Design of Paint Preparation / Feeding / Circulation Systems

(1К or 2K Systems based on DURR or GRACO dosing machines) 

ONETECH Engineering key competencies 

Design of non-standard painting machines

- double-sided automatic painting of metal sheets and profiles after shot blasting

~150K

Examples of ONETECH Engineering projects:

Designing and equipping the cabin paint shop 

 

 

315K

Examples of ONETECH Engineering projects:

Designing and equipping the furniture paint shop with 2K automatic mixing system

 

 

240K

Examples of ONETECH Engineering projects:

Designing a paint shop for electric trains 

 

 

1530K

Examples of ONETECH Engineering projects:

Aircraft painting hangar construction project

 

 

10-12 millions

Examples of ONETECH Engineering projects:

Plastic parts robot painting project

 

 

~ 340 K

Examples of ONETECH Engineering projects:

Robotic painting 

 

 

~ 5500 K

Examples of ONETECH Engineering projects:

Air purification system

 

 

~ 420 K

 

 

 

 

 

 

 

 

 

 

 

 

 

L13м x W6м x H8м

Weight: 60 t

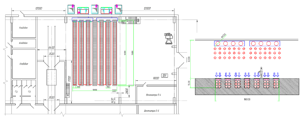
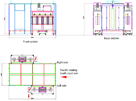
Examples of ONETECH Engineering projects:

Powder coating 

 

~ 35 K

Examples of ONETECH Engineering projects:

Powder coating line

 

~ 350 K

Examples of ONETECH Engineering projects:

Automatic mixing

and painting with 2K materials

 

 

~ 120 K

 

 

 

 

 

 

 

 

 

 

 

 

 

 

  

Examples of ONETECH Engineering projects:

Automatic mixing

and painting with 2K materials

 

 

~ 150 K

 

 

 

 

 

 

 

 

 

 

 

 

 

 

Examples of ONETECH Engineering projects:

Scales with an axle load of up to

15 t and a total load of up to 100 t.

 

Surface preparation and painting

 

 

 

 

 

 

 

 

 

 

 

 

 

 

 

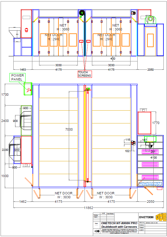
Examples of ONETECH Engineering projects:

Design of a special painting and drying booths

 

Size: 8,0 x 20,0 x 4,2m

 

Examples of ONETECH Engineering projects:

Special technique

Special fire trucks

Agro Machinery

Hopper overloader accumulator 

Examples of ONETECH Engineering projects:

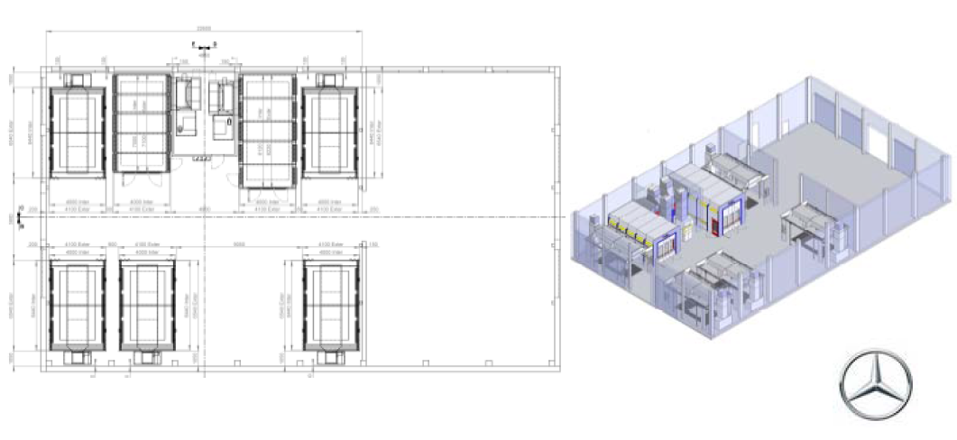
Design and supply of painting and drying equipment

Paint booth No. 1

Internal dimension: 12m x 6m x H6

 

Paint booth No. 2
Internal size; 18m x 7m x H6

 

Examples of ONETECH Engineering projects:

Metalworks.

Painting of steel structures up to 40 m.

 

 

~ 160К

Examples of ONETECH Engineering projects:

 

Metalworks

 

 

 

~ 160К

Examples of ONETECH Engineering projects:

Design and supply of a Special spray painting booth for ElectoBus

Examples of ONETECH Engineering projects:

Painting line for hydraulic cylinders

 

 

~ 210 K

Examples of ONETECH Engineering projects:

Metalwork painting line

Examples of ONETECH Engineering projects:

Metalwork plant

 

Examples of ONETECH Engineering projects:

Helicopter repairing plant

 

 

Examples of ONETECH Engineering projects:

Industrial spray booth

 

 

Examples of ONETECH Engineering projects:

Buses production

Examples of ONETECH Engineering projects:

Complex equipment of car services

Examples of ONETECH Engineering projects:

Manual + automatic cabinets doors painting solution

Examples of ONETECH Engineering projects:

Wooden door painting solution (automatic + manual)

Examples of ONETECH Engineering projects:

MAN Uzbekistan

~700K

Examples of ONETECH Engineering projects:

Design and supply of a spray painting booth for trucks

 

~ 123 K

Examples of ONETECH Engineering projects:

Spray booth for car paint shop (Germany)

Thank you for your attention!