MultiFamily

Point Cloud to Revit Architecture
MultiFamily
GB3 Mobile Scanning Technology
We use a proprietary mobile scanning system that allows a single operator to scan an interior space in a matter of minutes. The data is collected by the system and translate to a point cloud.



As the scanner emits and records signals, each hit is a data point recorded, generating what appears like a cloud of dots ~ The Point Cloud


Point Cloud Scan File
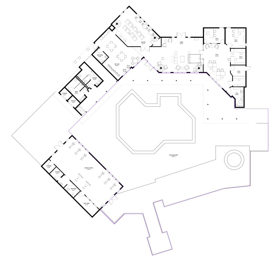
An expert Designer converts the point cloud to a dimensional floor plan.


Point Cloud to Floor Plan
Many useful tools and analysis' can be developed from the data; here, the designer recorded the "existing condition" of the ceiling in these buildings.


Reflected Ceiling Plan
Building areas are easily calculated. This information could be used for many applications:
- Floor area for material take offs' & estimates
- Wall area calculation for paint estimate
- Windows, doors and hardware counts


Building Area
Finish schedules can be developed easily. Accurate floor plans are excellent for laying out floor patterns or estimating flooring installation, saving money.


Area by Room
Detail Schedules of Walls, Doors, Windows, Ceilings, etc



Designers' Tool
Laying out accurate sizes of furnishing to optimize the function and flow of the building. Helps clients visualize the space you envisioned with wall materials, flooring, ceiling, furniture and other special equipment.


Accurately Scaled Floor Plan
Perspective for planning and presentation.
Overlay comparison with real world scale.


Rendering & Modeling
From the simple, short scan, the data can be developed into a visual projection of existing conditions or proposed concept for the space.



Rendering & Modeling
Scanning typical unit in an apartment complex for due diligence,
estimating number and size of new cabinets and counter-tops.


Building Modeling
From each typical unit, a building floor plan could be generated.


Building Modeling
Autodesk Revit {a Building Information Modeling program} generates a realistic model from floor plan. Contractors could have a visual for the exterior material of building, cheaply.


3D Printing
Computer model exported to 3D printer. Scaled model shows site layout, interior layout and roof detail.

