Digital Media
3D Graphics
48120 Fall 2016 Analog and Digital Media
In Review
- Assignment 6: Rhino I
- Assignment 7: Rhino II & InDesign
In Review
- Assignment 6: Rhino I
- Assignment 7: Rhino II & InDesign

A Practical Consideration
- Handrail posts
Technical Tips
- You can disable notifications in both Modelo and RealtimeBoard
- Indesign - Display Performance
Housekeeping
- Any more invitation issues?
Assignments 3 & 4
RT Board Open Critique
Fundamentals of
3D Graphics
Photoshop vs. Illustrator
Raster vs. Vector

2D Graphics
2D Graphics
CMYK
Cyan, Magenta, Yellow, Key (Black)
(Pigment / Print)
RGB
Red, Green, Blue
(Light / DigitalDisplay / Web)

2D Graphics
CMYK
Cyan, Magenta, Yellow, Key (Black)
(Pigment / Print)
RGB
Red, Green, Blue
(Light / DigitalDisplay / Web)

Why Media?
Talking Pictures = Media?
Media = Utopia?
Media = ?
c.35000 BC, Prehistoric Cave Painting (Pettakere Cave)


c.1300 BC, Egyptian Tomb Painting
c. 700 AD, Assyrian Relief


c. 1180, Cathedral of Monreale, Sicily
1425 AD, Masolino da Panicale

Renaissance: Invention of the Perspective
1425 AD, Masolino da Panicale
Renaissance: Invention of the Perspective

When it comes to representational techniques, technology is less about the tool, but rather more about one's framework of thinking.
c. 1500, Hans Holbein the Younger


1721, Johann Bernhard Fischer von Erlach
1732, L. A. Corvinus
1831, John Martin


1917. Vladimir Tatlin
1927, Metropolis

Raster Techniques

















Raster Techniques
Collaging

Gordon Matta Clark
Jesse Reiser

Jesse Reiser

Enric Miralles

Enric Miralles

Enric Miralles

Frank Dresme

Frank Dresme

Andrea Simitch


Raster Techniques
Montaging
Eadweard Muybridge

Eadweard Muybridge

Étienne-Jules Marey

Étienne-Jules Marey

Étienne-Jules Marey

Étienne-Jules Marey

Étienne-Jules Marey

David Eskenazi
David Eskenazi
David Hockney

Coop Himmelblau
Aristide Antonas

Aristide Antonas
Filip Dujardin

Filip Dujardin

Filip Dujardin

Filip Dujardin

Filip Dujardin
Filip Dujardin

Filip Dujardin

Vector Techniques
Vector Techniques
Architectural Drawings
2D
- Plan
- Section
- Elevation
3D
- Axonometric
- Isometric
- Perspective
- Section Perspective



Vector Techniques
Architectural Drawings
Legibility and clarity in communication is key!
Architectural drawings carry professional liability.
Critical architectural graphics like line weights are not just an aesthetic choice, but primarily a form of communication design.
As architects, we must be passionate and thorough about the details.
Otherwise, we end up with..




Section Perspective
Stephen Biesty

Stephen Biesty
Paul Rudolph

Paul Rudolph

Paul Rudolph

Paul Rudolph

Paul Rudolph
Rem Koolhaas

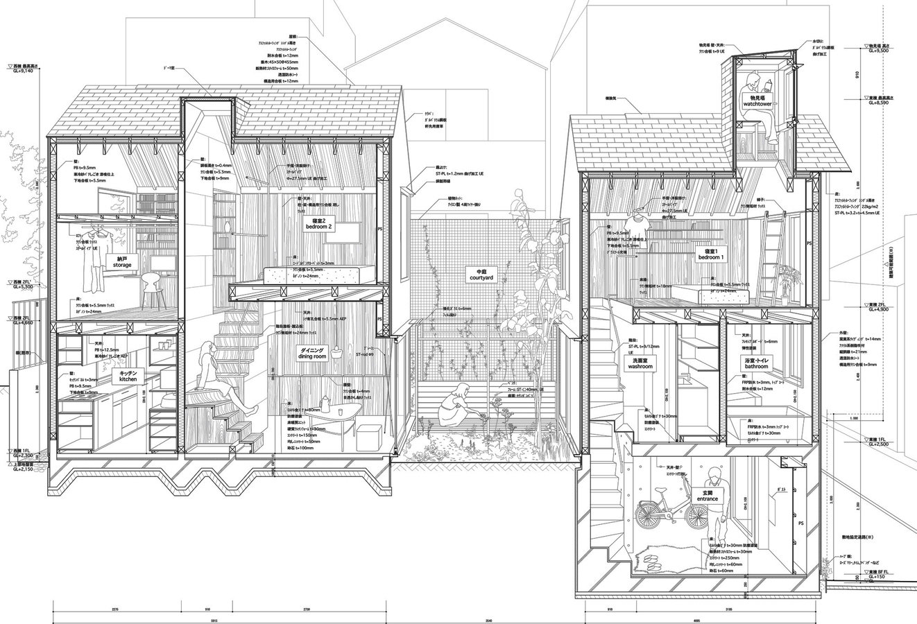
Kengo Kuma & Associates

A21 Studio

Atelier Bow Wow


Atelier Bow Wow

Atelier Bow Wow

Atelier Bow Wow
LTL Architects
LTL Architects

LTL Architects

LTL Architects

LTL Architects

LTL Architects

LTL Architects

LTL Architects

LTL Architects

LTL Architects

LTL Architects

LTL Architects

LTL Architects

LTL Architects

LTL Architects

LTL Architects

LTL Architects

LTL Architects

LTL Architects


Look for inspirations on your own:

Launchlabs / Stereo Architektur
Next Digital Media Class
Wednesday September 21, 2016 10:30am CFA 214
Come with Rhino 5 installed!

48120_F16_2
By Eddy Man Kim
48120_F16_2
9/26/2016 Lecture on 3D Graphics
- 1,124


