Projet J2-14
Construction de 28 logements locatifs à vocation sociale

4
Épreuve professionnelle de synthèse
Ourdas Charles 24/06/2014
Présentation personnelle
- Ourdas Charles
- BAC STI Génie-Civil
- BTS Etude et Economie de la Construction
- 2 ans alternance chez Système U - Centrale Nationale
Présentation du projet
-
28 logements en R+6 et sous-sol
Emplacement de l'étude: La Roche-sur-Yon
-
Etude limitée au bâtiment d'élévation
- Points particuliers :
Mitoyenneté
Structure béton
Isolation par l'extérieure
Ascenseur
Niveau 1 à 5 sensiblement similaires


Sommaire
1. Réponses aux parties communes
- Phase Avant-Projet Définitif
Notice d'accessibilité aux Personnes à Mobilité Réduite
Estimation avec la méthode UNTEC
Permis de construire et honoraires de la Maîtrise d'Oeuvre
Calendrier prévisionnel TCE
- Phase Projet
Etude du lot Étanchéité
Rédaction du CCTP
Cadre de Décomposition du Prix Global et Forfaitaire
Avant-métré et préparation DPGF
Sommaire
2. Réponses aux parties individuelles (Phases pro)
- Economie en Maîtrise d'Oeuvre - LOT 07 -Carrelage-Faïence
Etudes nécessaires préalables à la prescription
Etude performancielle
Avant-métré et plans de repérage
Cahier des Clauses Techniques Particulières
Cadre de Décomposition du Prix Global et Forfaitaire
- Economie en Entreprise - LOT 09 -Sols Souples
Contrôle des quantités fournies et avant-métré
Remise de prix
Analyse
-
Conclusion
APD - Notice PMR
- Contrôle des Normes - logements collectifs
-
Ancien bâtiment, modifications nombreuses


-
Accès et stationnement - solution envisagée
APD -Estimation UNTEC (logiciel Estima)
A 1 - Infrastructure
A 2 - Superstructure
A3 - Equipements
Méthode Rapide et globale
Comparaison et ratios

APD - Estimation UNTEC
- Coefficient de complexité
-Contraintes physiques
-Nature du programme
-Exigences contractuelles
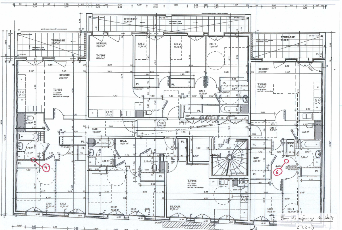
- Réalisation des métrés avec plans de repérages

APD - Exemple de plan de repérage


-
Hypothèses matériaux et prix
-Cloisons CF 1/2 h
-Cloison alvéolaire 32.39 €
APD - Ratios, choix des projets

APD - Estimation UNTEC / Ratios
-
Enveloppe budgétaire : 1 988 539.52 € HT
-
SHON: 2202.40 m² / Prix au m² de SHON : 903 €
-
Projet n°1: 30 logements locatifs sociaux (2.761.750,00 €)
Prix au m² de SHON : 975.54 € ( 2831 m²)
Estimation sur notre projet : 2 148 526.39€
-
Projet n°2: 24 logements locatifs sociaux (1.640.348,30 €)
Prix au m² de SHON: 889.24 € (1844.66 m²)
Estimation sur notre projet: 1 958 462.18 €
- Moyenne SHON au m²: 932.39 €
- Estimation finale : 2 053 495.73 €
APD - Permis de construire
- Rédaction du permis de construire -> Mairie
- Documents joints

APD - Honoraires de la maîtrise d'oeuvre
- Calculées à partir de l'estimation UNTEC.
- Travaux effectués suivant les phases et intervenants (Archi, BET, Economiste ...)

- Budget par intervenants

+ BET structure 25 %

APD - Calendrier prévisionnel TCE
- Répartition des lots
- Pourcentage de main d'oeuvre



- Construction du planning - 20 mois
- 3 mois pour la partie hors étude
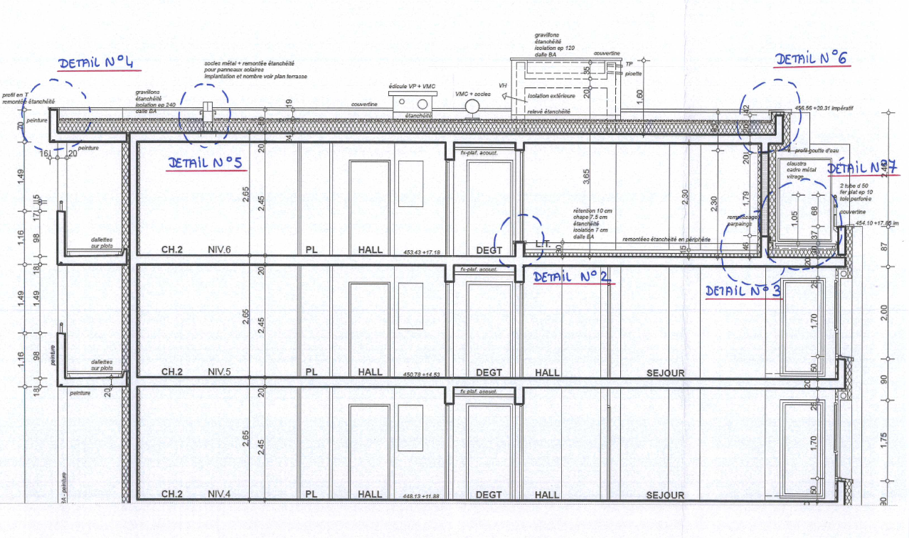
PRO - Etude du lot étanchéité

PRO - Etude du lot étanchéité
- Terrasse isolée avec isolant et étanchéité

PRO - Etude du lot étanchéité
- Classement FIT : F5 I4 T3
- Métré
- Étanchéité à l'air

PRO - CCTP et DPGF LOT 01- ETANCHEITE
- Extrait CCTP

- Extrait DPGF

Partie individuelle
- Economie en Maîtrise d'oeuvre
Lot 07 - Carrelage-Faïence
- Economie en Entreprise
Lot 09 - Sols Souples
LOT 07 - Etudes

LOT 07 - Etudes préalables à la prescription
- Consistance des travaux et objets du marché
- Interfaces avec les autres lots

LOT 07 - Etudes performancielles
- DTU et documents normatifs
- Classement UPEC

Comportement acoustique

Hypothèse : DeltaLw = 19 dB
LOT 07 - Plans de repérage et avant-métré
- Construction des plans de repérage


- Réalisation de l'avant-métré
CCTP et DPGF du lot 07 - Carrelage-faïence
- Rédaction du CCTP

- Construction du DPGF

Lot 09 - Sols souples, contrôle des quantités fournies
- Quantités du DPGF ok

LOT 09 - Remise de prix
- Démarches auprès des entreprises

- Choix des produits

LOT 09 - Sous-détails de prix
- Déboursé Horaire de Main d'Oeuvre : 26.30 €/h
- Coefficient K
MO : 1.4290
Fournitures : 1.3500
- Sous-détails:

LOT 09 - DPGF et Etude du prix
- DPGF et acte d'engagement
- Etude du prix entre phase APD et PRO
Avec et sans le revêtement dans les salles d'eau

- Prix acceptables
Conclusion
- Changement de question
- Situation de professionnalisation
- Méthode UNTEC
- Différentes étapes de l'appel d'offre
- Coordination, travail en équipe et relation avec professionnels
Remerciements
Aux entreprises Guillet et SOREPE
Aux architectes Aude NguyennHuu et Cédric Jenin
Aux étudiants Charlotte Courdavault et Audrey Bloin
Aux professeurs Monsieur Lagrandmaison et Monsieur Saludas
Projet J2-14
By Charles Ourdas
Projet J2-14
- 2,085
