Sustainable Design
November 17th, 2015
Overview
*Sustainable Land Use
*Examples in Practice
Sustainable Land Use Objectives
- Accommodate people: provide livable, healthy, meaningful, productive, and fun places for people to live
- Protect the environment: in urban areas, in working lands, in natural landscape, and beyond
- This balance is the challenge of sustainable design for planners, designers, developers, government, and land stewards

Sustainable Design is the Merging of Many Things
- Preservation & Restoration of Natural Features
- Efficient Use of Energy and Resources
- Enhancement of Community Features
- Mixed-Use, Compact, Walkable Urban Design
- Appreciation for Regional Context
Sustainable Patterns of Growth
- More dense and compact, consuming less land per household and freeing land for open space, green infrastructure, and habitat and watershed protection
- Less homogenous land use patterns, with a mixed proximity of uses for residential, commercial, employment and educational purposes
- Less homogenous types of housing, with mixed-residential single family housing, townhomes, and multifamily apartments that can accommodate mixed-incomes households and greater diversity

The Missing Middle
A range of multi-unit or clustered housing types compatible in scale with single-family homes that help meet the growing demand for walkable urban living
Source: http://missingmiddlehousing.com/
90% of available housing in the US is located in a conventional neighborhood of single-family homes

Distributed throughout a block with single-family homes
Where Can We Build the Missing Middle?
Placed on the end-grain of a single-family block


Using an entire block to transition to a commercial corridor
To transition from single-family homes to dense housing


Sustainable Patterns of Growth
- More walkable, enabled by compact and mixed-use development, leading to healthier cities
- Transit-oriented, with denser development around transit stops, again facilitated by compact land use and walkability
- Focus on infill & redevelopment when possible, including retrofitting suburbs to revitalize existing communities and preserve outlying green space



Retrofitting Suburbia



Source: http://thisbigcity.net/three-strategies-for-refueling-abandoned-gas-stations/

1. Reuse

2. Redevelop

3. Reposition


Process for Sustainable Land Use Design
The process for developing sustainably and livably is technical, creative, and participatory. It includes:
- Land use analysis to understand the land's natural features and develop opportunities and constraints
- Creative design that incorporates features of land protection, community aesthetics, and livability
- Stakeholder involvement, including community groups, local government, land conservation organizations, existing residents, and potential users to provide local knowledge, perceptions, and context

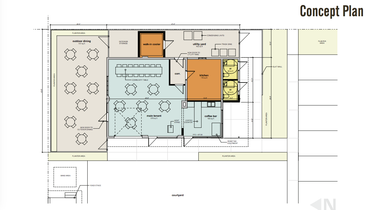
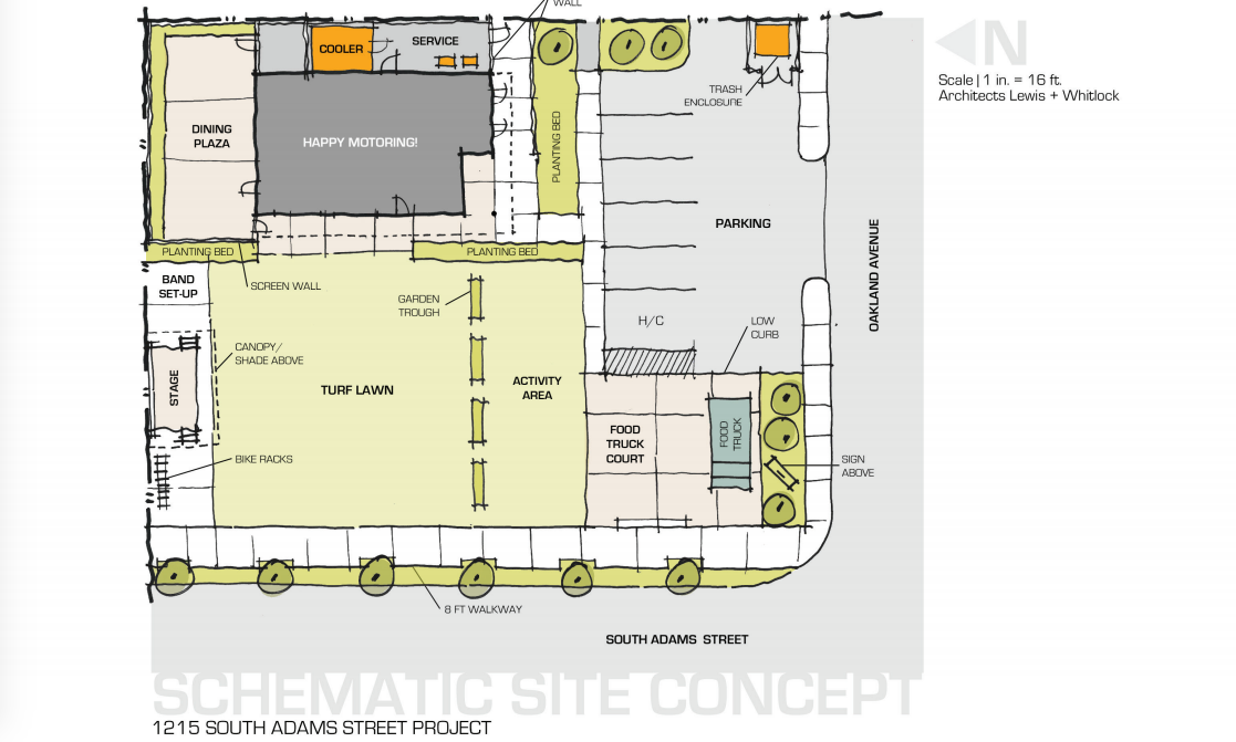
Happy Motoring! at 1215 S. Adams St.



Technical



Creative




Participatory
Full post: http://www.mallorylbrooks.com/blog/tallahassee-photography-foremost-happy-motoring

Thinking Beyond Mere Land Use: Ecodistricts

More info: http://ecodistricts.org/
So What's An Ecodistrict?
- From Portland State Planning Definition:
EcoDistricts are neighborhoods committed to accelerating sustainability that integrate building and infrastructure projects with community and individual action. - From EcoDistricts Non-profit Definition:
A new model of urban regeneration that ensures just, sustainable, resilient neighborhoods for all.
-
Program oriented & driven by grassroots
scale action. -
Deals more explicitly with social justice and environmental issues
EcoDistricts Cont.

Piloted in Portland in 2010: 5 Districts
In a Nutshell:
Neighborhood Organizing, Sustainability Style
p.s. This is hybrid rational/collaborative planning in action.
Real talk. Real work.
SOMA Ecodistrict Process
-
Pilot study championed in 2010 by Portland State Univesity
-
PSU and thirteen other major property owners formed the SoMa EcoDistrict Steering Committee in April 2011. Adopted name and boundaries via MOU. Drafted vision and goals.
-
Brainstormed initial projects, such as bike share and green building best practice handbook
-
Launched SOMA EcoDistrict roadmap in 2012.



Assess Conditions and Make Projections
Create a Shared Vision and Set Goals

Source: https://www.pdx.edu/planning-sustainability/sites/www.pdx.edu.planning-sustainability/files/SoMa%20EcoDistrict%20Roadmap.pdf
Create a Shared Vision and Set Goals

Create a Shared Vision and Set Goals


Support those Goals with Specific Strategies
Support those Goals with Specific Strategies

Support those Goals with Specific Strategies

Support those Goals with Specific Strategies

Tactical Urbanism: A Grassroots Way Forward
An umbrella term used to describe a collection of low-cost, temporary changes to the built environment, usually in cities, intended to improve local neighbourhoods and city gathering places.





"People make cities, and it is to them, not buildings, that we must fit our plans."
- Jane Jacobs

Cross-Cutting SOMA District Programs
Cross-Cutting SOMA District Programs


Cross-Cutting SOMA District Programs

EcoDistricts Into the Future
- Launched non-profit and nationwide program to drive ecodistrict planning across the US
- Unveiling neighborhood and professional certification program in December 2015
- Accepts yearly class of Incubator neighorhoods
- Tons more info: http://ecodistricts.org/
Sustainable Design
By Lucas Lindsey
Sustainable Design
- 1,291