Investing in Arizona Since 2008. On a Mission to Create, Inspire, and Serve.

www.venueprojects.com

Scenario 1 - BTR Detached SF

Twelve (12) 'Haver' Homes on Existing Zoning per JDA

Eight (8) 2/2s @ 1200 SF | Four (4) 3/2s @1600 SF

Scenario 1b - BTR Modern Trailer

Fourteen (14) Reimagined Boxes on Zoning TBD

Drawn as 864 SF 2/2s

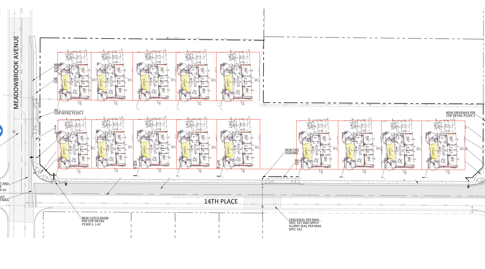
Scenario 2 - Stacked Duplex

Sixteen (16) Stacked Duplexes and Two (2) Stacked Fourplexes in R3A or R4

Duplexes at 25 x 50 x 2 Story & Tuck Under Garage | Fourplexes at 40 x 60 x 2 Story

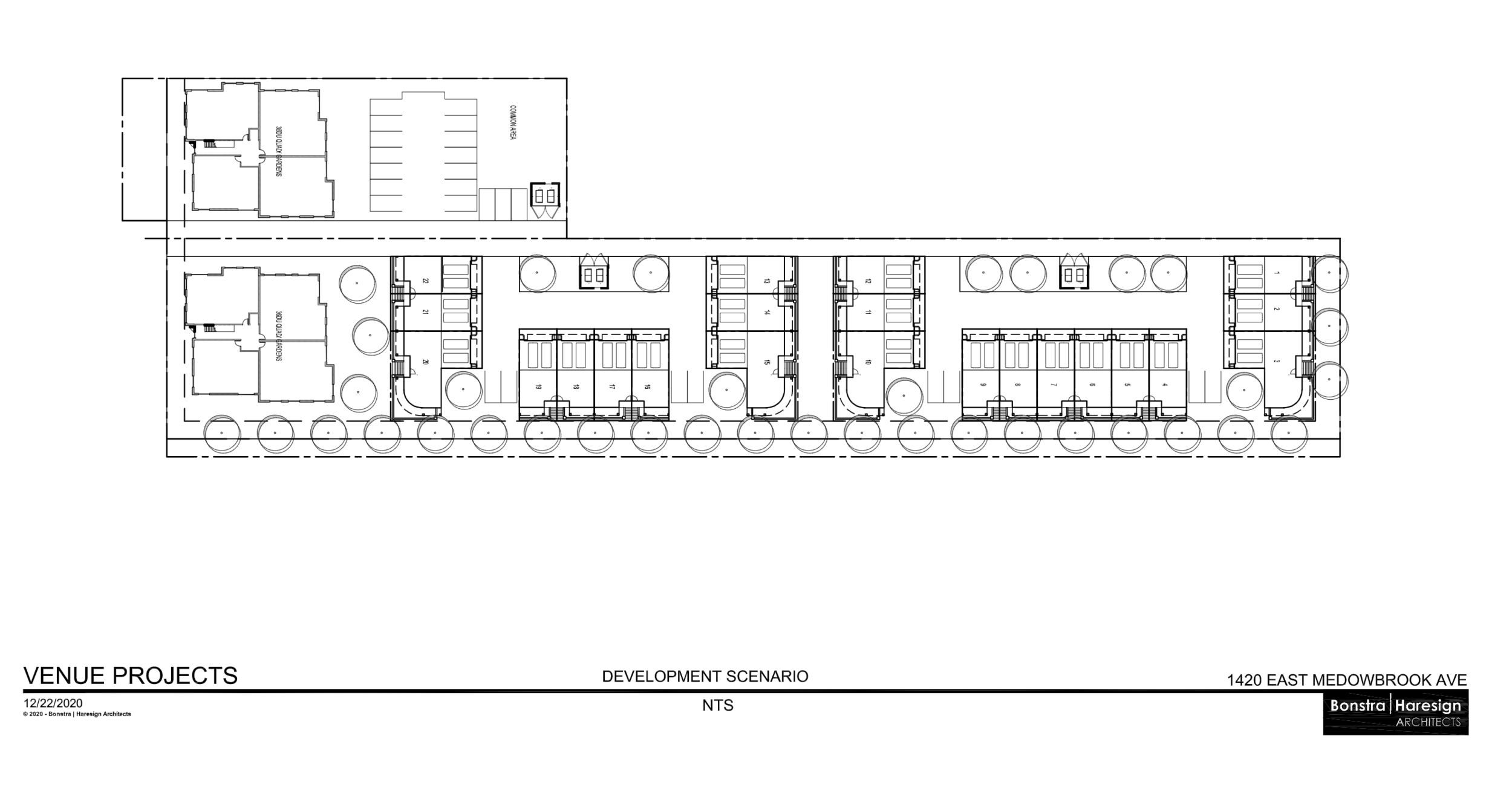
Scenario 3a - Misc. Hybrids

Scenario 3a - Misc. Hybrids

VP - Wonderview

By Lucas Lindsey

VP - Wonderview

  • 722