Lic. En Arquitectura

Diseño Estructural I

Docente:

Arq. José Angel Méndez Dosal

Tema:

Cafetería Gourmet

Alumnos:

Franco Solórzano Ramón

Fecha:

24/06/2016

Ubicación

Se trata de una cafetería gourmet ubicada en Fluvial Vallarta, en esquina con la Av. Fluvial y Lago Salado. Detrás de plaza caracol, entre San Marino Plaza y el restaurante "Las Adelitas"

Propuesta

La propuesta de la cafetería gourmet consta de un gran espacio para comedor. Para cubrir este gran claro de 10x10m se propuso un sistema de cáscaras de dos paraboloides hiperbólicos simétricos

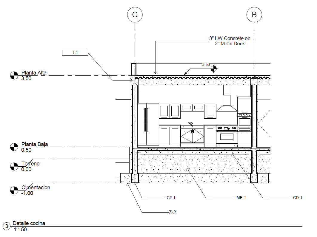
Criterio estructural

El criterio estructural será heterogéneo de concreto y acero. Como sistema constructivo se utilizaran vigas, trabes y zapatas aisldas. Para dar mayor estabilidad se utilizaran contratrabes para unificar la estructura

Planimetría

Planta de conjunto

Planos estructurales

Renders

Cafetería Gourmet

By Ramón FaSol

Cafetería Gourmet

  • 1,004