Проєктування інфраструктури виробництва

Інженер.-тех. забезпеч. ВПВ-1
Інженерне забезпечення типових проєктів
Лекція 4
1. Склад і транспортні системи
2. Інформаційні потоки
3. Розроблення типових проектів
2
1. Склад і транспортні системи
2
Діяльність сучасних підприємств ВПК
неможлива без раціонально
організованого складського господарства
і добре продуманої транспортної системи.
Процеси складування продукції, сировини і матеріалів мають важливі елементи логістики у виробничих процесах.

Матеріально-інформаційні потоки ВПВ
Терміни часу, витраченого на транспортування, складування
і зберігання матеріалів, півфабрикатів
і виробів, іноді перевищує
50% часу виробничого циклу.
Під складуванням розуміють заплановане стаціонарне перебування продуктів (півфабрикатів) у матеріальному потоці.
А склади характеризуються специфічними потребами у площах і просторі у комплексі зі складським обладнанням.
Процеси складування виконують такі функції:
- поповнення запасів сировини і матеріалів для забезпечення надійності виробництва;
- підготовки технологічного процесу, а іноді
й виконання певної технологічної операції;
Процеси складування виконують такі функції:
- синхронізації за часом процесів надходження, знаходження і вибування сировини, матеріалів і продуктів, за кількістю та номенклатурою;
- комплектування продуктів і півфабрикатів.
Склади для будь-якого сучасного виробництва виконують важливу роль регулятора процесу, оскільки він починається і завершується на складах.
Обов’язковою умовою створення складу
є необхідність врахування вхідного та вихідного вантажопотоків з мінімальними витратами.
При розгляді будь-якого складу як системи, у його структурі можна виділити три функціональні підсистеми:
- приймання сировини та матеріалів;
- зберігання їх на території складу;
- видача на транспорт для відправлення за призначенням.
Підсистема прийому може мати секції (дільниці):
- розвантаження;
- зберігання вподовж певного часу;
- сортування та розкладання матеріалів у тару;
- необхідні транспортні засоби.
Підсистема зберігання містить (ділянки)
зони зберігання:
- за видами матеріалів;
- накопичувачі на вході та виході;
- шляхи можливого переміщення.
Підсистема видачі відповідні підйомно-транспортні засоби і секції (дільниці):
- відбору;
- пакування;
- комплектування;
- тимчасового зберігання перед відправленням;
- завантаження на зовнішнійтранспорт.
У ВПК розрізняють складування:
- на відкритих майданчиках -використовується рідко і лише для тимчасового зберігання, бо присутня можливість розкрадання і дії не передбачуваних атмосферних умов;
У ВПК розрізняють складування:
- на підлозі у будівлях — найбільш проста форма без складського стелажного устаткування у формі рядного чи блочного комплектування —характеризується гнучким використанням простору (рулони паперу
«на торець»);
У ВПК розрізняють складування:
- на полицях —найпоширеніше
з використанням відповідного складського оснащення або без нього;
- на стелажах у ящиках, на палетах, підмостках, піддонах.
Наприклад, норми ДІПРОНДІПоліграф:
книжковому (великому) підприємству з багатосерійним виробництвом дозволялося мати під складами 6 % загальної площі, зі серійним виробництвом (середньому)
-5 %, дрібносерійному (малому) - 3,5 %.
для газетно-, книжково-, журнальних підприємств передбачалось 7; 6 та 3,5 % відповідно.
Наприклад, норми ДІПРОНДІПоліграф:
Норми враховували і висоту приміщень складів
від підлоги нижнього поверху до підлоги наступного
- 4,8; 5,4; 6,0; 7,2 м за мінусом 0,9...1,0 м на верхні
будівельні конструкції.
Однак, у нинішніх ринкових умовах норми зберігання, розроблені ДІПРОНДІполіграфом, які наведено на наступних слайдах, слід вважати застарілими як з точки зору оперативності, так і економічної доцільності.
Але без якісної організації складського господарства важко передбачити чітку роботу підприємства, тож поки що ці норми залишаються орієнтиром для проектування.

Базисний склад рулонного паперу

Базисний склад рулонного паперу

Базисний склад аркушевого паперу

Базисний склад рулонного та аркушевого паперу

Склади матеріалів і готової продукції
При проектуванні інфраструктури базові склади повинні включати окремі ділянки прийому й видачі:
- рулонного паперу; аркушевого паперу і картону;
- змивних та інших подібних витратних матеріалів.
А операційні склади:
- додатково дільницю обробки та пресування відходів (пуста картонна тара, залишки паковання від рулонів, обрізки паперу, макулатура тощо).
Базові та операційні склади
розташовують поблизу транспортних магістралей у наземних спорудах, облаштованих спеціально під склади з відповідною рампою (естакадою, дебаркадером), висота якої відповідає нижньому рівню вантажного відсіку транспортного засобу.
Сучасне підприємство і його складське господарство неможливе без оперативної спеціалізованої потужної комп’ютеризованої бази даних.
Сучасний бізнес динамічний, тому організація оперативного обліку, планування, контролю, менеджменту безперервно змінюється відповідно до часу.
- управління потоком «постачання-збут»;
- контроль процесу та графіків виконання замовлень;
- контроль доставки і оплати всіх витратних матеріалів, півфабрикатів інших виробників - кооператорів;
- формування системи реалізації готової товарної продукції;
- автоматизацію документообігу.
Комп’ютеризована система управління складським господарством повинна забезпечити:
- ділово-процесні TPS (Transaction Processing System);
- офісні OAS (Office Automation System);
- управлінські MIS(Management Information System);
- підтримки прийняття рішення DSS (Decision Support System);
- виконання рішення ES (ExecutiveSystem).
Сьогодні популярні 5 головних типів інформаційних систем обліку:
Перш ніж вибирати приміщення
для організації складу чи переобладнувати наявне, необхідно визначити вид і спосіб розташування матеріалів та готової продукції у просторі складу.
- ступінь використання площі та просторового об’єму;
- можливість механізації складських операцій;
- необхідні капітальні та експлуатаційні витрати;
- створення комфортних умов роботи персоналу.
Це впливатиме на:
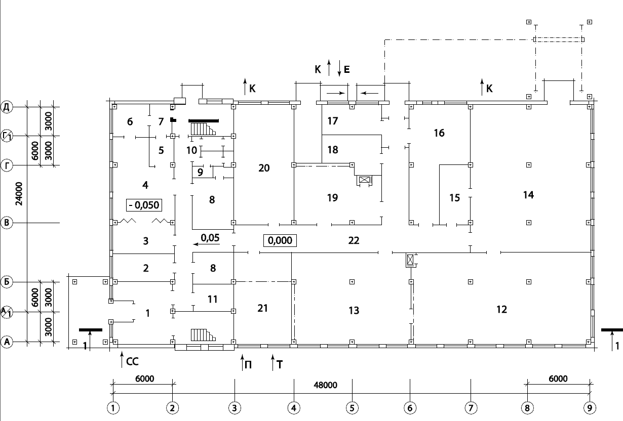
Приклад розміщення складських приміщень
у регіональній друкарні потужністю 20,0 млн. аркушів-відбитків плоского офсетного друку зі зволоженням друкарських форм наведено на наступному слайді.

1 —вестибюль;
2 —кімната приймання замовлень;
3...7 —приміщення буфету;
8 —гардероби;
9...10 —туалети;
11 —господарська комора;
12 —друкарський цех;
13 —брошурувальний цех;
14 —склад і дільниця підготовки паперу;
15 —пресова відходів;
16 —експедиція (склад) готової продукції;
17 —зарядка електротранспорту;
18 —щитова електропостачання;
19 —матеріальний склад;
20 —ремонтно-механічна майстерня;
21 —вузол уведення електромереж (трансформаторна) та кондиціювання повітря
Пояснення до рисунку:
Проектування складського господарства тісно пов’язане з транспортними системами.
Головні проектні рішення,
якими досягається зменшення кількості
і довжини транспортних маршрутів,
зниження вантажопотоків - це цілеспрямована на оптимум компонувальна стратегія розміщення устаткування і робочих місць, застосування доцільно необхідних видів транспорту.

Транспорт на складах

Експедиція готової продукції

Експедиція готової продукції
Внутрішньо-цехова транспортна система призначена для своєчасного постачання матеріалів зі складу на необхідну виробничу дільницю, півфабрикатів між технологічними процесами і готової продукції на склад після виготовлення видань, задрукованої тари тощо.
Внутрішня транспортна система є одним
з важливих факторів, які сприяють створенню оптимальної схеми просторового розміщення виробництва.
Різке скорочення транспортних витрат досягається оснащенням технологічних процесів автоматичними потоковими лініями, агрегатами, машинами-автоматами.
Існує загальний підхід щодо визначення кількості транспортних засобів, враховуючи машиномісткість транспортних операцій, яку можна визначити за такою такою формулою

де:
Мтр.о. — машиномісткість транспортних операцій, год;
В1 — обсяг (маса) вантажопотоку, т;
Тсер. — середня тривалість одного рейсу або одного циклу роботи транспортного засобу, хв;
nсер. — середня транспортна партія (кількість вантажів,
перевезених за один рейс), т.
- руху транспорту до місця завантаження;
- завантаження;
- руху з вантажем;
- розвантаження;
- можливих затримок, на які дається час, який дорівнює 0,15 від часу руху транспортного засобу з вантажем.
Тривалість одного рейсу визначається з урахуванням виконання таких транспортних операцій:
Час руху транспортного засобу
визначається, враховуючи довжину транспортного шляху і швидкість переміщення, яка не повинна перевищувати 80 м/хв для наземного транспорту та 50 м/хв для підвісного транспорту.
Можна розрахувати
і кількість необхідних піддонів для зберігання
і перевезення півфабрикатів, оскільки вони мають прямий зв’язок з транспортним устаткуванням і без них неможливе транспортування того чи іншого вантажу.

де:
Рроб.м. — кількість робочих місць, для яких необхідні піддони;
Кроб.м. — кількість одиниць піддонів, яка необхідна для кожного робочого місця, приймається Кроб.м. = 1,5...2,0 залежно від розмірів пачок півфабрикатів (готової продукції).

У Європі найрозповсюдженіші палети 800х1200
(так звана европаллета, EUR-палета, ставиться клеймо EUR або EPAL).
Макс. дозволена вантажопідйомність європалет 2 тонни.
Із вимог ох. праці та реального використання в галузі навантажується 500 - 1000 кг.
Для проведення розрахунків базисної і операційної складської площі користуються нормами ДіпроНДІПоліграф, які наведено у навч. посібнику: Величко О. Видавничо-поліграфічна справа. Практикум з проектування і розрахунку технологічних і виробничих процесів [Текст] : навч. посіб./ Олена Величко. —К.: Видавничо-поліграфічний центр «Київський університет», 2009. —С. 340.
2. Інформаційні потоки
2
- можливість управління всіма процесами і системами виробництва;
- ведення обліку робочого часу, матеріалів, енергії, ресурсів взагалі;
- ефективно аналізувати, запобігати, виявляти і т.п. втрати, збоїі т.п. та підвищувати продуктивність виробництва.
Комп’ютеризація ВПВ дає:
Обчислювальна система підприємства
сукупність комп’ютерів, з’єднаних кабелями зв’язку, мережевими адаптерами та іншими комунікаційними пристроями, або використання безпроводної мережі для завдань виробництва.
Головне - інструменти для об’єднання робочих місць забезпечують всім користувачам потенційну можливість разом використовувати ресурси всіх робочих станцій підприємства.
- розподіл високовартісних виробничих ресурсів;
- покращення доступу до інформації;
- якісне управління та швидке вирішення проблем;
- досконалий зв’язок по всій території підприємства.
Переваги застосування мереж:
Див. детальніше у джерелах:
Полиграфия. —2007. —№ 6. —С.56-58;
Курсив. —2005. —№ 4. —С. 40-43;
Компьюарт. —2007. —№ 4. —С. 24-26;
№ 12. —С. 54-56, 59-65;
Print Plus. —2008. —№ 2. —С.60-62.
Тут саме про відомі рішення систем управління (приміром PECOM, Prinnect)із застосуванням CiP3 та CiP4.
А також Управ. тех. проц. Лек. 3
Системи автоматизованого управління виробництвом
Завдання проектувальників інфраструктури виробництва — підготувати завдання на розробку комп’ютерної мережі.
- наводяться всі робочі місця, що підлягають об’єднанню;
- наводяться рекомендоване комп’ютерне устаткування і відповідне програмне забезпечення;
- розробляється структура мережі, яка відповідає структурі підприємства;
- наводиться рекомендована потужність РС;
- надається перелік операцій та засоби контролю, що підлягають комп’ютеризації.
Зміст завдання:
- для виробничих завдань розраховується;
- для комп’ютеризації процесів - приймається як виробничо необхідне!
Кількість апаратно-програмним засобів:
3. Розроблення типових проєктів
2
Перед видавничо-поліграфічними підприємствами малих і середніх потужностей завжди стояло інвестицій незавдання
необхідність будівництва нових приміщень
чи нової організації (реорганізації) виробництва у зв’язку з появою нових технологій і техніки
у засобах і методах виготовлення продукції.
У сучасному суспільстві - суспільстві знань,
із динамічним розвитком технологій та матеріалів, зміні відносин між підприємствами, фінансовими структурами і громадянами - гострою проблемою залишається ефективне вкладання інвестицій у галузь інформаційних виробничих процесів.
Тож першочерговими тут стоять завдання скорочення етапів виконання проектів, вибору типових конструкцій (розмірів) нової будівлі, можливостей переоснащення чи реконструкції інших виробництв з використанням існуючих площ тощо.
На ціпроблеми сьогодні накладаються нові фактори динамічних змін виробничих програм, що зумовлюються ринком.
При проєктуванні постає реальна проблема вирішення типових задач для забезпечення високих темпів проектних робіт - скорочення часу від ідеї до втілення її у виробництво.
Проектування нового, але типового, як складника ділової активності, забезпечить стабільну роботу галузі.
Фінансова, оперативна й інвестиційна політика малих і великих підприємств має відповідати напрямам і стратегічним цілям, зафіксованим у стандартних перспективних проектах новобудов, реконструкцій, модернізацій, переоснащень, у бізнес-планах тощо.
Необхідність індивідуального проектування із застосуванням типових проектних рішень прискорює розробки.
Потужне видавничо-поліграфічне підприємство завжди вимагатиме розроблення індивідуального проекту за традиційними методами проєктування
- в одну або дві стадії, з попередньою передпроектною науковою розрбкою.
Та все ж і таке підприємство не обійдеться без застосування окремих типових проектних рішень.
Застосуванню типових проектних рішень сприяє розвиток цифрових технологій —створення потужних банків даних і розроблення системних проектних програм.
Комп’ютерне проєктування базується на системі автоматизованого проєктування (САПР)
- інформаційне забезпечення, що реалізується через банк даних, які вводяться оператором у пам’ять системи;
- методичне забезпечення, яке характеризується наявністю пакетів відповідних програм або навіть цілих масивів програм, за якими здійснюються проєктні операції;
- технічні периферійні засоби з підбором блоків комп’ютерної техніки, за допомогою яких на виході можна отримати конкретні дані для досягнення поставленої мети.
Складники САПР:
Однак, повністю виключити людину з процесу проєктування все ж таки неможливо.
Адже процес проєктування — творчий.
В уяві людини створюються образи майбутніх проектів, які за допомогою САПР можуть бути реалізовані.
Зокрема, тут можливе і об’ємне проєктування виробів за допомогою утиліт тривимірного моделювання, планування приміщень шляхом створення варіантів сітки колон
з різними розмірами тощо.
забезпечення комплексного підходу до вирішення конкретних завдань за допомогою окремих масивів програм, які маютьможливості розширення файлів,
що інтегруються і конвертуються між собою і можутьпередаватися по інформаційним мережам.
Завдання САПР:
Далі буде...
Література
1. Величко,О.М.Видавничо-поліграфічна справа. Практикум з проектування і розрахунку технологічних і виробничих процесів. — К.: ВПЦ „Київський університет”, 2009.
2. Величко О. М. Проектування технологічних процес і ввидавничо-поліграфічного виробництва [Електронний ресурс]: навчальний посібник для студентів напряму підготовки 6.051501 «Видавничо-поліграфічна справа» / О. М. Величко, В. М. Скиба, А. В. Шангін; НТУУ «КПІ». –Електронні текстові дані (1файл:1,71Мбайт). – Київ: НТУУ «КПІ», 2014. – 235 с. –Назва з екрана. —http://ela.kpi.ua/handle/123456789/8538.
3. Проектування та розрахунки виробничих процесів [Електроннийресурс]: електронні таблиці для виробничих розрахунків для студентів спеціальностей «Технологія друкованих видань»,«Технологіярозробки,виготовленнятаоформленняпакувань»/НТУУ«КПІ»;уклад.В.І.Кульбич.–Електроннітекстовідані(1файл:752Кбайт;1файл:1,04Мбайт).–Київ:НТУУ«КПІ»,2010.-Назвазекрана.—http://library.ntu-kpi.kiev.ua:8080/handle/123456789/460.
Дякую!
Copy of ITZ-1 Lecture 4
By wassky
Copy of ITZ-1 Lecture 4
- 265