Проєктування інфраструктури виробництва

Інженер.-тех. забезпеч. ВПВ-1
Архітектурно-будівельні рішення
Лекція 5
1. Будівлі й сучасні конструкції споруд
2. Генеральний план підприємства
2
1. Будівлі й сучасні
конструкції споруд
Завдання архітектурно-будівельної частини у проектуванні інфраструктури включає:
- визначення навантаження на перекриття будівлі (у тонах на 1 кв. м);
- облаштування та колір інтер’єру — стін, стелі, підлоги (з технологічними вимогами);
Завдання архітектурно-будівельної частини у проектуванні інфраструктури включає:
- заходи зі зниження шуму (звукоізоляція);
- висоту приміщення.
Але окрім цього, також важливо:
- зовнішнє оформлення будівлі і його функціонування в умовах існуючої інфраструктури;
- пристосування старої будівлі до нових цілей;
- абсолютно нове рішення.

Бліц-Інформ

Банкнотно-монетний двір (до)

Банкнотно-монетний двір (після)

АДЕФ
Тріада

Вибір типу будівлі
У ВПК використовують будівлі громадські, промислові й комбіновані та споруди різного призначення: виробничі, обслуговуючі, допоміжні.
До виробничих будівель відносяться такі,
в яких здійснюються головні і допоміжні технологічні процеси.
Це не обов’язково повинні бути промислові будівлі, а можуть бути громадські й комбіновані.
Наприклад, для розміщення видавництв, видавничих фірм, репроцентрів, закладів торгівлі книжками та пресою.
До обслуговуючих відносяться будівлі
та споруди складського, енергетичного (електрика, тепло) і транспортного призначення (гаражі, приміщення для заряджання електрокар, водопостачання, нейтралізації стічних вод тощо).
До допоміжних відносяться будівлі управління, їдальні, медпункт, санітарнопобутового призначення, прохідні тощо.
Всі вони класифікуються за такими ознаками:
- ступенем капітальності, вогнетривкості та пожежної безпеки;
- температурним режимом — термоконстантні з регламентованими: температурою, вологістю, запиленістю;
- можуть бути опалювальні і неопалювальні;
Всі вони класифікуються за такими ознаками:
- формою покрівлі даху —плоскі та схилі;
- зі світловими ліхтарями чи без них;
- відведенням атмосферних стоків з покрівлі
- із зовнішнім чи внутрішнім відведенням води зливними трасами;
Всі вони класифікуються за такими ознаками:
- габаритним розташуванням на генеральному плані —квадратні та прямокутні, споруди Г-, П- або Ш-, рідше замкненої форми.
Типи будівель:
- павільйонного типу;
- одноповерхові;
- багатоповерхові;
- технічні споруди.
План і розріз одноповерхової будівлі павільйонного типу

План багатоповерхової будівлі у розрізі

Фасад і розріз триповерхової будівлі типового проекту регіональної друкарні

Основні типи і параметри будівель ВПК

Основні типи і параметри будівель ВПК

Головні вимоги до промислових об’єктів такі:
- структура будівлі підприємства повинна бути максимально орієнтована на технологічний процес виконання визначених функцій з послідовно лінійним рухом виробничого потоку;
- гнучкість проекту технологічних процесів при необхідності зміни або регулюванні виробничого процесу;
Головні вимоги до промислових об’єктів такі:
- будівля з не багатьма постійними точками структури (стіни, сходи, опори, модулі систем постачання та утилізації відходів);
- короткі терміни на будівництво і монтаж обладнання;
Головні вимоги до промислових об’єктів такі:
- вхідні можливості на монтаж, ремонт і експлуатацію устаткування (наявність у будівлі монтажних пройомів);
- організація простору (комфортні кліматичні умови) і систем освітлення, що підвищує продуктивність праці;
Головні вимоги до промислових об’єктів такі:
- можливості гнучкого розширення і перебудови з урахуванням особливостей галузі;
- позитивне стимулювання колективу, яке залежить від комфортних умов праці, соціального побуту, зовнішнього виду підприємства.
Критерії вибору типу будівлі, зумовлених визначеним для ВПК проектом:
- виробнича структура (види технологічних процесів, етапи виробництва) відповідає сучасному і перспективному стану;
- процеси виробництва у цілому (потужність і серійність технології та логістика) мають перспективи зростання;
Критерії вибору типу будівлі, зумовлених визначеним для ВПК проектом:
- чисельність співробітників чітко визначена;
- координатна мережа (сітка) опор, довжина прольотів, навантаження на перекриття та дах гарантують безаварійну роботу;
Критерії вибору типу будівлі, зумовлених визначеним для ВПК проектом:
- логістичні принципи (постачання, виробництва і збуту);
- комунікаційні зв’язки (діапазони та потужність інженерних комунікацій; об’єднання їх у мережі) забезпечені;
Критерії вибору типу будівлі, зумовлених визначеним для ВПК проектом:
- особливості місця розташування, кліматичні умови і навколишнє середовище сприяють стабільній роботі підприємства;
- освітлення (штучне, природне чи комбіноване) відповідає нормам;
Критерії вибору типу будівлі, зумовлених визначеним для ВПК проектом:
- вентиляція (централізована чи децентралізована, загальна чи місцева) забезпечує комфортні умови праці;
- інформаційні зв’язки (умови телефонного, радіо6 і телевізійного зв’язку, Інтернет, пневмотранспорт, переходи і дороги тощо) надійні.
Чинники, що впливають на проєктування і будівництво ВПК:
- скорочення термінів проектування і будівництва;
- економія матеріальних витрат;
- забезпечення впровадження новітніх технологічних процесів;
Чинники, що впливають на проєктування і будівництво ВПК:
- автоматизація виробництва на базі комп’ютерних систем;
- забезпечення соціально-побутових потреб працюючих.
При визначенні завдання на будівельну частину слід врахувати розширення виробництва та зміну обладнання при цьому визначення навантаження на перекриття є дцже важливим;
фундамент під обладнання можливо встановлювати треба буде!
Всі особливості технолігчних і виробничих процесів вимагають уваги у проєкті архітектурно-будівельної частини.
Зокрема, в завданні це все вказується
з точними розмірами, межами температури тощо.
Важливим є втілення задуму архітектора
— це вирішується підготовкою макету
з відповідних матеріалів, 3D-моделі, рисунків зовнішнього оформлення і виду будівлі.
Макет книжкової фабрики

3D моделі споруд

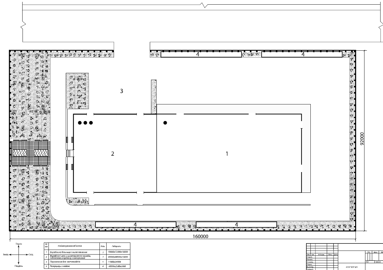
2. Генеральний план підприємства
Генеральний план забудови будь-якого промислового підприємства — це довго- строковий план загального планомірного розвитку території мікрорайону та, власне, підприємства.
Він включає перспективні плани використання і подальшого розвитку території і будівель (споруд).
Головна мета розроблення генерального плану полягає у таких технічних
аспектах:
— цілеспрямоване використання земельних площ, простору територіальних і
будівельних структур;
— орієнтація на матеріальні, людські, енергетичні та інформаційні потоки для
забезпечення ефективного виробничого процесу;
Головна мета розроблення генерального плану полягає у таких технічних
аспектах:
— забезпечення умов для реалізації етапів розвитку і розширення площ новостворених
підприємств.
Головна мета розроблення генерального плану полягає у таких технічних
аспектах:
— забезпечення умов для реалізації етапів розвитку і розширення площ новостворених
підприємств.

Умови використання озеленених ділянок лімітуються відповідними показниками-коефіцієнтами:
- забудови,
- об’єму будівель,
- щільності забудови.



Завдання для СРС
1. Основні інженерні комунікації малого поліграфічного підприємства (міні-друкарні, репроцентру, офісної служби, комерційної фірми, вищого навчального закладу тощо).
2. Системи підводу інформації, енерго-і водопостачання до промислових будівель для забезпечення їх стабільної роботи.
3. Головні елементи будівель і споруд.
Інтер’єривиробничих приміщень.
Література
1. Величко,О.М.Видавничо-поліграфічна справа. Практикум з проектування і розрахунку технологічних і виробничих процесів. — К.: ВПЦ „Київський університет”, 2009.
2. Величко О. М. Проектування технологічних процес і ввидавничо-поліграфічного виробництва [Електронний ресурс]: навчальний посібник для студентів напряму підготовки 6.051501 «Видавничо-поліграфічна справа» / О. М. Величко, В. М. Скиба, А. В. Шангін; НТУУ «КПІ». –Електронні текстові дані (1файл:1,71Мбайт). – Київ: НТУУ «КПІ», 2014. – 235 с. –Назва з екрана. —http://ela.kpi.ua/handle/123456789/8538.
3. Проектування та розрахунки виробничих процесів [Електроннийресурс]: електронні таблиці для виробничих розрахунків для студентів спеціальностей «Технологія друкованих видань»,«Технологіярозробки,виготовленнятаоформленняпакувань»/НТУУ«КПІ»;уклад.В.І.Кульбич.–Електроннітекстовідані(1файл:752Кбайт;1файл:1,04Мбайт).–Київ:НТУУ«КПІ»,2010.-Назвазекрана.—http://library.ntu-kpi.kiev.ua:8080/handle/123456789/460.
Дякую!
ITZ-1 Lecture 5
By wassky
ITZ-1 Lecture 5
- 266